Property Details
Basic Information
- Property Type: Single Family
- MLS Number: 5067639
- Status: ACT
- Lot Description: Sloping, Wooded
- Acreage: 3.39
- Foreclosure: No
Building
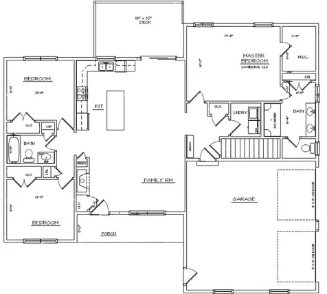
- Square Feet: 1,554
- Year Built: 2025
- Zoning: Residential
- Stories: 2
- Roof: Architectural Shingle
- Building Construction: Wood Frame, Vinyl Siding
- Foundation: Concrete
- Garage Spaces: 2
Location
- Town: Merrimack
- County: Hillsborough
- State: NH
- Zip: 03054
Interior Features
Bedrooms
- Bedrooms: 3
Bathrooms
- Bathrooms: 2
Basement
- Basement: Unfinished
Other
- Interior Features: Cathedral Ceiling, Gas Fireplace, Kitchen Island, Kitchen/Family, LED Lighting, Primary BR w/ BA, Walk-in Closet,1st Floor Laundry
- Floors: Carpet, Hardwood, Tile
Exterior Features
Features
- Parking Description: Driveway, Garage, Paved, Attached
- Driveway: Paved
- Exterior Features: Deck, Porch
Utilities and Appliances
Utilities and Appliances
- Appliances Included: Dishwasher, Microwave, Refrigerator, Gas Stove, On Demand Water Heater
- Heat System: Propane, Forced Air
- Sewer: Private
- Water: Drilled Well
Community
Schools
- Elementary School: Thorntons Ferry School
- Junior High: Merrimack Middle School
- High School: Merrimack High School














Social Media Links