Property Details
Basic Information
- MLS Number: 5065333
- Status: ACT
- Lot Description: City Lot, Mountain View, Street Lights, View, In Town, Near Snowmobile Trails, Near ATV Trail, Near School(s)
- Acreage: 0.11
- Foreclosure: No
- Virtual Tour: Virtual Tour
Building
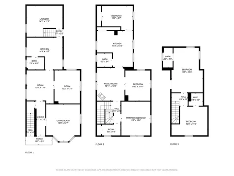
- Square Feet: 2,672
- Units: 2
- Year Built: 1887
- Zoning: RG
- Roof: Metal
- Building Construction: Vinyl Siding
- Exterior Color: Grey
- Foundation: Granite, Stone
- Garage Spaces: 2
Location
- Town: Berlin
- County: Coos
- State: NH
- Zip: 03570
Interior Features
Bathrooms
- Bathrooms: 3
Basement
- Basement: Concrete Floor, Partial, Exterior Stairs, Sump Pump, Unfinished, Exterior Access
Other
- Floors: Hardwood, Vinyl
Exterior Features
Features
- Driveway: Dirt, Right-Of-Way (ROW)
- Road Frontage: 50
Utilities and Appliances
Utilities and Appliances
- Heat System: Oil, Pellet Stove
- Sewer: Public
- Water: Public
- Water Heater: Electric Water Heater
Community
Schools
- Elementary School: Berlin Elementary School
- Junior High: Berlin Junior High School
- High School: Berlin Senior High School
Other Details
Finance
- Taxes: $3,790
- Tax Year: 2024





















































Social Media Links