Property Details
Basic Information
- Property Type: Single Family
- MLS Number: 5066501
- Status: ACT
- Lot Description: Country Setting, Level, Other, Wooded, Near Paths, Rural, Near School(s)
- Acreage: 3.12
- Foreclosure: No
- Virtual Tour: Virtual Tour
Building
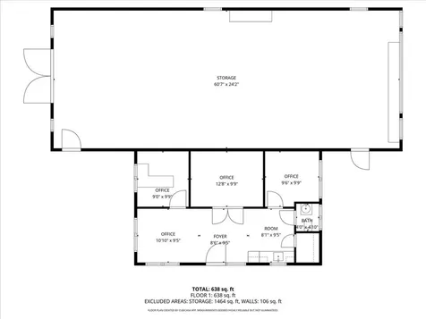
- Square Feet: 638
- Year Built: 2014
- Zoning: Res/Agr
- Stories: 1
- Roof: Metal, Architectural Shingle
- Building Construction: Wood Frame, Shake Siding, Shingle Siding, Wood Exterior, Wood Siding
- Exterior Color: Brown
- Foundation: Concrete, Concrete Slab
Location
- Town: Deerfield
- County: Rockingham
- State: NH
- Zip: 03037
Interior Features
Bathrooms
- Bathrooms: 1
Other
- Interior Features: Kitchen Island, Natural Light, Other, Security
- Floors: Vinyl Plank
Exterior Features
Features
- Driveway: Common/Shared, Gravel
- Road Frontage: 200
- Exterior Features: Barn, Other, Outbuilding, Shed
Utilities and Appliances
Utilities and Appliances
- Appliances Included: Microwave, Mini Fridge, Water Heater
- Heat System: Electric, Mini Split, Ductless
- Sewer: On-Site Septic Exists, Septic
- Water: Dug Well
Community
Schools
- Elementary School: Deerfield Community Sch
- Junior High: Deerfield Community School
- High School: Concord High School
Amenities
- Accessibility Amenities: 1st Floor 1/2 Bathroom,1st Floor Hrd Surfce Flr, Kitchenette w/5 Ft. Diam, No Stairs, No Stairs from Parking, One-Level Business
Other Details
Finance
- Taxes: $5,973
- Tax Year: 2024
















































Social Media Links