Property Details
Basic Information
- Property Type: Condo
- MLS Number: 5064548
- Status: Active With Contract
- Lot Description: Condo Development
- Foreclosure: No
- Virtual Tour: Virtual Tour
Building
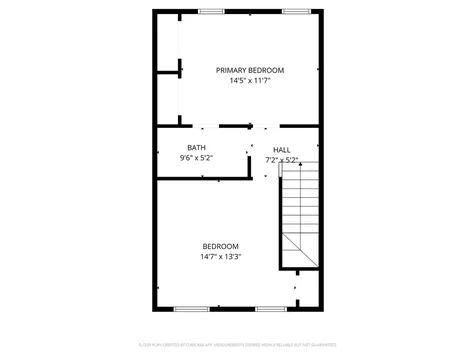
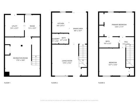
- Square Feet: 1,613
- Year Built: 1986
- Zoning: AR-I
- Stories: 2
- Roof: Other Shingle
- Exterior Color: White
- Foundation: Concrete
Location
- Town: Londonderry
- County: Rockingham
- State: NH
- Zip: 03053
Interior Features
Bedrooms
- Bedrooms: 2
Bathrooms
- Bathrooms: 2
Basement
- Basement: Bulkhead, Partially Finished, Basement Stairs
Other
- Interior Features: Kitchen/Dining,1st Floor Laundry
Exterior Features
Features
- Driveway: Paved
- Road Frontage: TBD
Utilities and Appliances
Utilities and Appliances
- Sewer: Community
- Water: Community
Community
Schools
- High School: Londonderry Senior HS
Other Details
Finance
- HOA Fee: $479
- Taxes: $4,611
- Tax Year: 2024







































Social Media Links