Property Details
Basic Information
- Property Type: Single Family
- MLS Number: 5064480
- Status: SLD
- Lot Description: Corner, Landscaped
- Acreage: 0.16
- Foreclosure: No
- Virtual Tour: Virtual Tour
Building
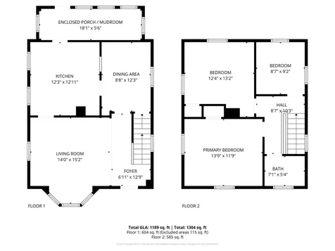
- Square Feet: 1,165
- Year Built: 1902
- Zoning: OLD SA
- Stories: 2
- Roof: Shingle
- Building Construction: Wood Frame, Aluminum Siding
- Exterior Color: green
- Foundation: Brick, Granite, Poured Concrete
Location
- Town: Rollinsford
- County: Strafford
- State: NH
- Zip: 03869
Interior Features
Bedrooms
- Bedrooms: 3
Bathrooms
- Bathrooms: 1
Basement
- Basement: Bulkhead, Full, Sump Pump, Unfinished
Other
- Interior Features: Basement Laundry
- Floors: Hardwood, Vinyl, Wood
Exterior Features
Features
- Parking Description: Driveway, Off Street
- Driveway: Gravel
- Exterior Features: Garden Space, Patio, Shed
Utilities and Appliances
Utilities and Appliances
- Appliances Included: Dryer, Microwave, Electric Range, Refrigerator, Washer
- Heat System: Hot Water, Steam
- Sewer: Public
- Water: Public
Community
Schools
- Elementary School: Rollinsford Grade School
- Junior High: Marshwood Middle School
- High School: Marshwood High School
Other Details
Finance
- Taxes: $4,920
- Tax Year: 2024



















































Social Media Links