Property Details
Basic Information
- Property Type: Single Family
- MLS Number: 5068274
- Status: Active With Contract
- Lot Description: Landscaped
- Acreage: 0.21
- Foreclosure: No
- Virtual Tour: Virtual Tour
Building
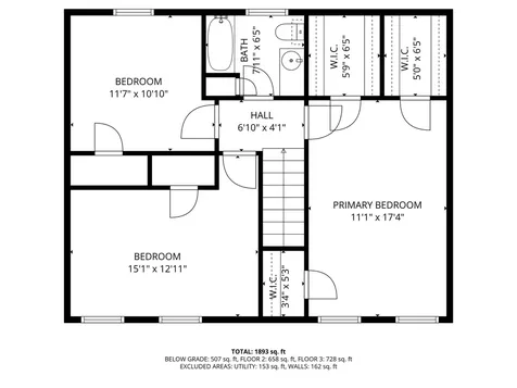
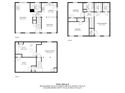
- Square Feet: 2,181
- Year Built: 1986
- Zoning: RS
- Stories: 2
- Roof: Shingle
- Building Construction: Wood Frame
- Exterior Color: White
- Foundation: Concrete
Location
- Town: Concord
- County: Merrimack
- State: NH
- Zip: 03303
Interior Features
Bedrooms
- Bedrooms: 3
Bathrooms
- Bathrooms: 2
Basement
- Basement: Finished, Interior Stairs
Other
- Interior Features: Dining Area,1st Floor Laundry
- Floors: Carpet, Ceramic Tile, Hardwood, Laminate
Exterior Features
Features
- Parking Description: Parking Spaces 3
- Driveway: Paved
- Road Frontage: 75
- Exterior Features: Garden Space, Outbuilding, Patio, Shed
Utilities and Appliances
Utilities and Appliances
- Appliances Included: Dishwasher, Dryer, Microwave, Refrigerator, Washer, Electric Stove
- Heat System: Hot Water, Wood Stove
- Sewer: Public
- Water: Public
Community
Schools
- Elementary School: Beaver Meadow Elementary Sch
- Junior High: Rundlett Middle School
- High School: Concord High School
Other Details
Finance
- Taxes: $8,135
- Tax Year: 2024





















































Social Media Links