Property Details
Basic Information
- MLS Number: 5027853
- Status: ACT
- Acreage: 2.02
Building
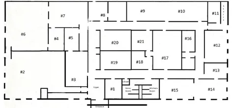
- Square Feet: 33,000
- Year Built: 1984
- Zoning: IND
Location
- Town: Jaffrey
- County: Cheshire
- State: NH
- Zip: 03452
Success!
Contact us using the form below or give us a call.
Copyright 2026 PrimeMLS, Inc. All rights reserved. This information is deemed reliable, but not guaranteed. The data relating to real estate displayed on this display comes in part from the IDX Program of PrimeMLS. The information being provided is for consumers’ personal, non-commercial use and may not be used for any purpose other than to identify prospective properties consumers may be interested in purchasing. Data last updated February 14, 2026 8:08 AM EST
Success!
Contact us using the form below or give us a call.
From the best tools and technology to transparency throughout the entire process, we're the top choice for buyers and sellers.


136 South Main Street PO Box 385 Wolfeboro, NH 03894
66 NH Route 25 Meredith, NH 03253
750 Lafayette Road, Suite 201 Portsmouth, NH 03801
2779 White Mountain Hwy North Conway, NH 03860
Social Media Links