Property Details
Basic Information
- Property Type: Condo
- MLS Number: 5068260
- Status: Active With Contract
- Lot Description: Country Setting, Landscaped, Level, Recreational, River, River Frontage, Ski Area, Trail/Near Trail, Walking Trails, Water View, Waterfront, Wooded, Mountain, Near Shopping, Near Skiing, Near Snowmobile Trails, Valley
- Foreclosure: No
- Virtual Tour: Virtual Tour
Building
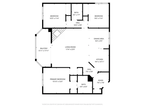
- Square Feet: 1,262
- Year Built: 1991
- Zoning: Gen use
- Stories: 1
- Roof: Asphalt Shingle
- Exterior Color: Borwn
- Foundation: Concrete Slab
Location
- Town: Woodstock
- County: Grafton
- State: NH
- Zip: 03262
Interior Features
Bedrooms
- Bedrooms: 3
Bathrooms
- Bathrooms: 2
Other
- Interior Features: Blinds, Dining Area, Wood Fireplace,1 Fireplace, Furnished, Hearth, Laundry Hook-ups, Primary BR w/ BA, Natural Light, Window Treatment,1st Floor Laundry
- Floors: Carpet, Laminate, Tile
Exterior Features
Features
- Driveway: Circular, Paved
- Road Frontage: TBD
- Exterior Features: Deck, Shed, Window Screens
Utilities and Appliances
Utilities and Appliances
- Sewer: Public
- Water: Public
Community
Schools
- Elementary School: Lin-Wood Public School
- Junior High: Lin-Wood Public School
- High School: Lin-Wood Public HS
Other Details
Finance
- HOA Fee: $723
- Taxes: $4,802
- Tax Year: 2024





























































Social Media Links