Property Details
Basic Information
- Property Type: Condo
- MLS Number: 5066394
- Status: Active With Contract
- Lot Description: Condo Development, Country Setting, Landscaped, Subdivision, Trail/Near Trail, Walking Trails
- Foreclosure: No
- Virtual Tour: Virtual Tour
Building
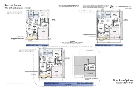
- Square Feet: 1,674
- Year Built: 2025
- Zoning: Residential
- Stories: 1
- Roof: Architectural Shingle
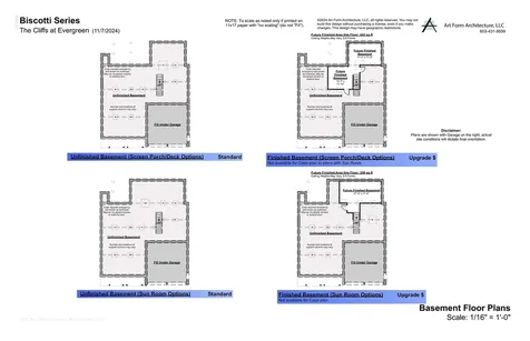
- Foundation: Concrete
- Garage Spaces: 2
Location
- Town: Auburn
- County: Rockingham
- State: NH
- Zip: 03032
Interior Features
Bedrooms
- Bedrooms: 2
Bathrooms
- Bathrooms: 2
Basement
- Basement: Bulkhead, Concrete Floor, Daylight, Interior Stairs, Storage Space, Unfinished, Exterior Access
Other
- Interior Features: Dining Area, Kitchen Island, Kitchen/Dining, Kitchen/Living, LED Lighting, Primary BR w/ BA, Natural Light,1st Floor Laundry, Smart Thermostat
- Floors: Carpet, Hardwood, Tile
Exterior Features
Features
- Driveway: Paved
- Road Frontage: TBD
- Exterior Features: Screened Porch, Window Screens, ENERGY STAR Qual Windows
Utilities and Appliances
Utilities and Appliances
- Sewer: Septic
- Water: Private
Community
Amenities
- Adult Community: Yes
Other Details
Finance
- HOA Fee: $235






































Social Media Links