Property Details
Basic Information
- Property Type: Single Family
- MLS Number: 5066029
- Status: ACT
- Lot Description: Landscaped, Abuts Conservation
- Acreage: 0.35
- Foreclosure: No
Building
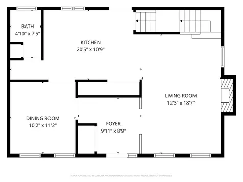
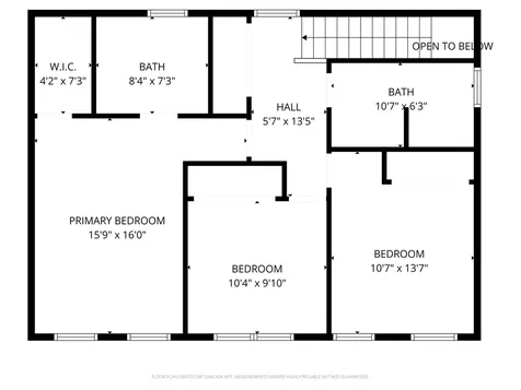
- Square Feet: 2,191
- Year Built: 2006
- Zoning: Residential
- Stories: 2
- Roof: Asphalt Shingle
- Building Construction: Vinyl Exterior
- Foundation: Concrete
Location
- Town: Milford
- County: Hillsborough
- State: NH
- Zip: 03055
Interior Features
Bedrooms
- Bedrooms: 3
Bathrooms
- Bathrooms: 3
Basement
- Basement: Concrete, Finished, Interior Stairs
Exterior Features
Features
- Driveway: Paved
- Road Frontage: 47
Utilities and Appliances
Utilities and Appliances
- Heat System: Propane, Hot Air
- Sewer: Public
- Water: Public
Other Details
Finance
- Taxes: $8,460
- Tax Year: 2024

































Social Media Links