Property Details
Basic Information
- Property Type: Condo
- MLS Number: 5064879
- Status: Active With Contract
- Lot Description: Condo Development, Landscaped, Level, Mountain View, River Frontage, Ski Area, View, Water View, Waterfront, Near Golf Course, Near Shopping, Near Skiing, Near Snowmobile Trails, Near School(s)
- Foreclosure: No
- Virtual Tour: Virtual Tour
Building
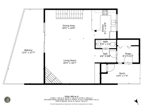
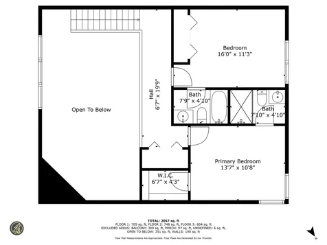
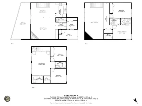
- Square Feet: 2,082
- Year Built: 1984
- Zoning: Rural Residential
- Stories: 2
- Roof: Asphalt Shingle
- Exterior Color: Grey
- Foundation: Poured Concrete
Location
- Town: Lincoln
- County: Grafton
- State: NH
- Zip: 03251
Water
- Water Access: Shared
- Water Body Name: Pemigewasset River
- Water Body Type: River
Interior Features
Bedrooms
- Bedrooms: 4
Bathrooms
- Bathrooms: 4
Basement
- Basement: Finished, Full
Exterior Features
Features
- Driveway: Paved
- Road Frontage: No
Utilities and Appliances
Utilities and Appliances
- Sewer: Public
- Water: Public
Community
Schools
- Elementary School: Lin-Wood Public School
- Junior High: Lin-Wood Public School
- High School: Lin-Wood Public HS
Other Details
Finance
- HOA Fee: $480
- Taxes: $4,695
- Tax Year: 2024

















































Social Media Links