Property Details
Basic Information
- Property Type: Single Family
- MLS Number: 5041872
- Status: ACT
- Lot Description: Country Setting, Level, Sloping, Trail/Near Trail, Rural, Near ATV Trail
- Acreage: 1.1
- Foreclosure: No
Building
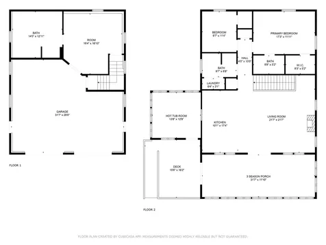
- Square Feet: 2,285
- Year Built: 2016
- Zoning: rural
- Stories: 1
- Roof: Asphalt Shingle
- Building Construction: Vinyl Siding
- Exterior Color: grey
- Foundation: Concrete
- Garage Spaces: 4
Location
- Town: Milan
- County: Coos
- State: NH
- Zip: 03570
Interior Features
Bedrooms
- Bedrooms: 2
Bathrooms
- Bathrooms: 3
Basement
- Basement: Concrete Floor, Finished, Partially Finished, Walkout, Interior Access
Exterior Features
Features
- Driveway: Crushed Stone, Dirt
- Road Frontage: 230
Utilities and Appliances
Utilities and Appliances
- Heat System: Radiant
- Sewer: 1250 Gallon, Septic
- Water: Drilled Well, Private
Other Details
Finance
- Taxes: $5,462
- Tax Year: 2024

































































Social Media Links