Property Details
Basic Information
- Property Type: Commercial Sale
- MLS Number: 5067904
- Status: ACT
- Acreage: 2.68
- Foreclosure: No
- Virtual Tour: Virtual Tour
Building
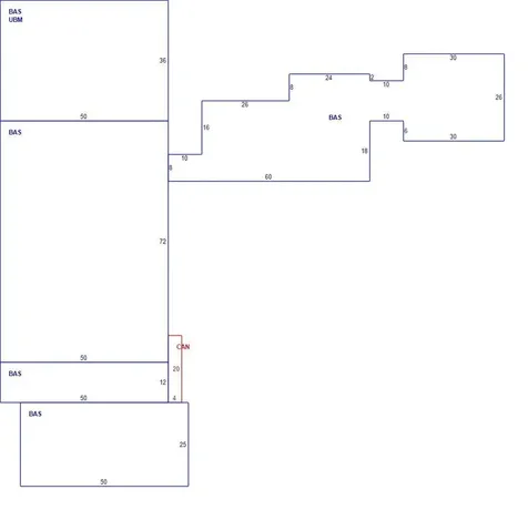
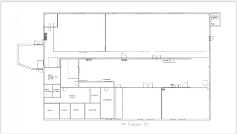
- Square Feet: 27,206
- Year Built: 1970
- Zoning: Industrial
- Roof: Membrane
- Foundation: Concrete Slab
Location
- Town: Milford
- County: Hillsborough
- State: NH
- Zip: 03055
Interior Features
Basement
- Basement: Concrete Floor, Exterior Access, Interior Stairs, Slab, Walkout
Exterior Features
Features
- Road Frontage: 303
Other Details
Finance
- Taxes: $27,058
- Tax Year: 2024






























































Social Media Links